Camps
  • Obras
    • Casas
    • Edificios
    • Urbanizaciones
  • Nosotros
  • Contacto

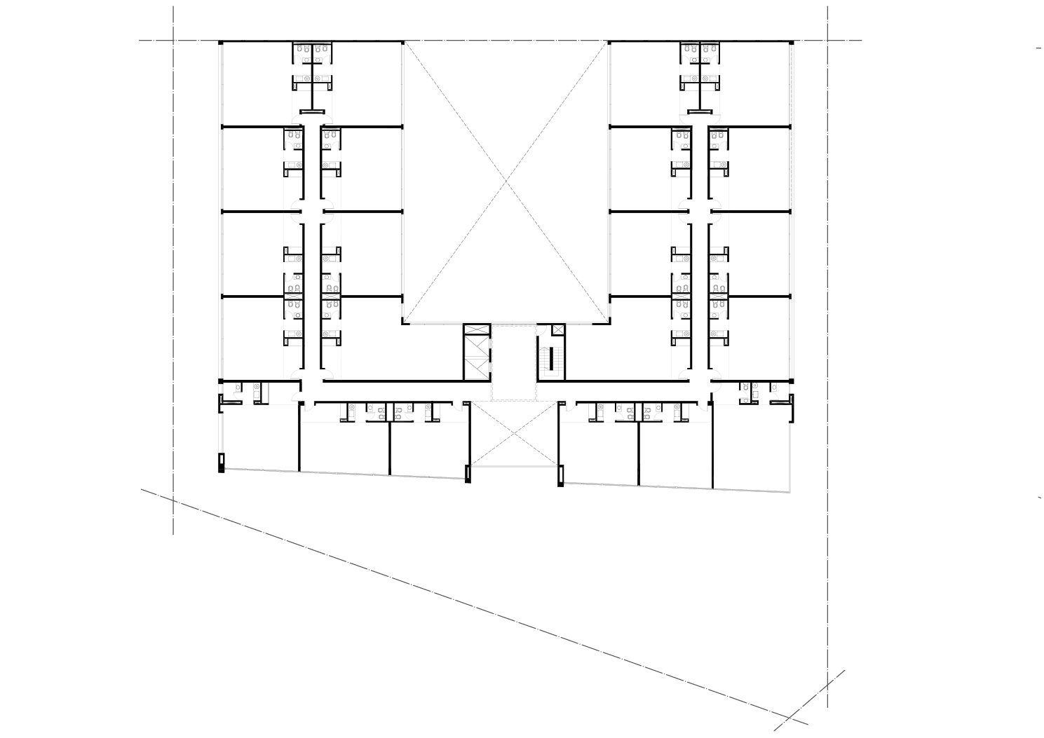
Polo I

Autor

Fernando Camps

Coautor

Martin Forcinito

Colaboradores

Estefania Capatto / Teodoro Tenenbaum

Año finalización

En proceso

Superficie

Terreno: 2.943 m2
Construida: 8.228 m2

Unidades

82

Project Type

  • #Edificios
©
Use arrows for navigation